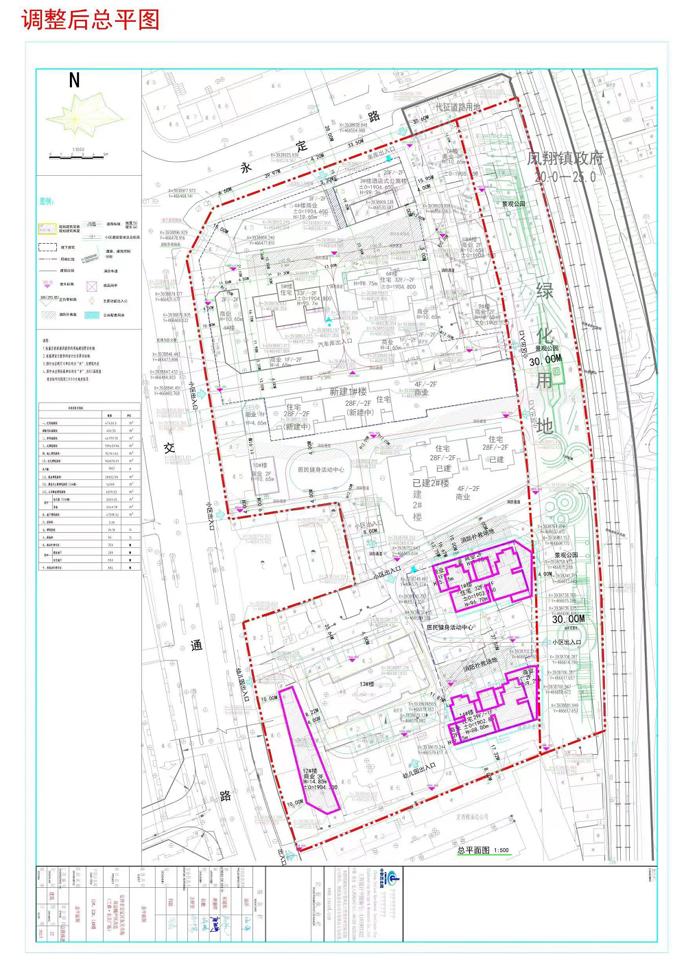
为了便于社会公众对建设项目规划方案的监督,提高规划的科学性和可操作性。根据《中华人民共和国城乡规划法》和《甘肃省建设项目规划许可办法》等法律法规,经2022年7月8日市自然资源局局务会会议研究,现将定西市安定区东关市场周边棚户区改造项目(兰雅·东关市场)11#、12#、14#楼调整方案面向社会公示,欢迎社会各界提出宝贵意见和建议。
公示有效时间:2022年7月8日至2022年7月15日,共5个工作日。 公示方式和地点:定西市自然资源局网站。 联系地址:定西市安定区西岩路18号 定西市自然资源局510室。 联系电话:0932-8312726(上午8:30-12:00,下午2:30-6:00,节假日除外)。 定西市自然资源局 2021年7月8日 主要调整内容 一、调整内部空间功能布局。取消12#楼东侧一层部分(幼儿园南侧),西侧局部二层调整为三层,建筑面积由原批复的1961.37平方米调整为1791.72平方米,建筑面积减少169.65平方米。 二、调整住宅户型。将11#、14#号住宅楼户型结构进行调整,11#建筑面积由原批复的20283.34平方米调整为20252.77平方米,建筑面积减少30.57平方米,其中商业减少58.23平方米,住宅增加27.66平方米。14#建筑面积由原批复的18288.4平方米调整为18201.28平方米,建筑面积减少87.12平方米,其中商业减少82.03平方米,住宅减少5.09平方米。 调整后的总经济技术指标为:总建筑面积199459.94平方米(减少287.34平方米),地上建筑面积152141.62平方米(减少287.34平方米),地下建筑面积47318.32平方米,容积率3.26,建筑密度26.10%,绿地率36%,停车位750辆。 


|