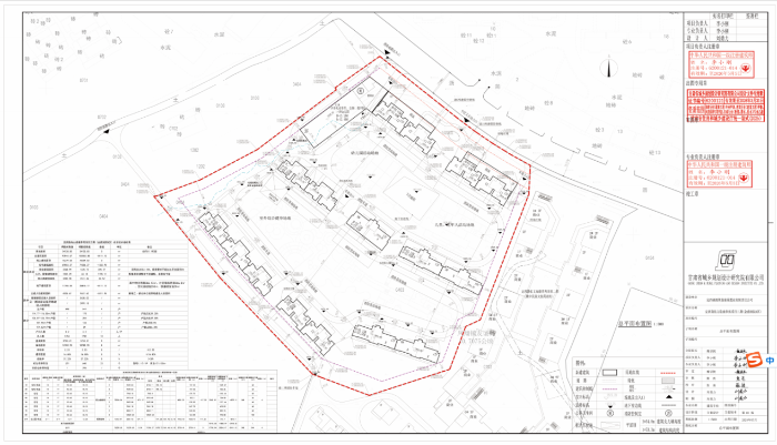
审批事项名称:变更建设工程规划许可证公示 项目名称:定西陇佑文旅康养苑项目三期(金鼎润院B区) 证书编号:621102202500008号,建字第6211022025GG0010581 建设单位名称:定西福源聚鼎康养置业有限责任公司 项目位置:甘肃省定西市安定区凤翔镇薛家岔十三台 用地面积:34128平方米 建设规模: 建筑编号 | 建筑名称 | 建筑高度(m) | 层数 | 建筑面积(㎡) | 备注 | 地上 | 地下 | 地上 | 地下 | 地上 | 地下 | 基底 | 计容 | 总面积 | 1 | 1#住宅/商业 | 55.15 | 13.2 | 17 | 3 | 9539.83 | 1509.87 | 737.32 | 9539.83 | 11049.7 |
| 2 | 2#住宅/商业 | 55.15 | 10.3 | 17 | 2 | 9539.83 | 706.26 | 737.32 | 9539.83 | 10246.09 |
| 3 | 5#住宅 | 55.15 | 11.1 | 17 | 2 | 7960.10 | 1032.66 | 475.75 | 7960.10 | 8992.76 |
| 4 | 9#住宅 | 55.15 | 11.1 | 17 | 2 | 5974.65 | 734.58 | 352.2 | 5974.65 | 6709.23 |
|
| 3#住宅 | 55.15 | 11.1 | 17 | 2 | 9429.88 | 1227.66 | 539.59 | 9429.88 | 10657.54 |
|
| 6#住宅 | 55.15 | 6.5 | 17 | 1 | 9541.18 | 613.83 | 547.73 | 9541.18 | 10155.01 |
|
| 7#住宅 | 55.15 | 6 | 17 | 1 | 8852.71 | 542.76 | 544.55 | 8852.71 | 9395.47 |
|
| 8#住宅 | 55.15 | 5.5 | 17 | 1 | 12069.53 | 773.88 | 764.02 | 12069.53 | 12843.41 |
|
| S1#幼儿园/商业 | 13.20 | 3.2 | 3 | 1 | 3331.92 | 813.7 | 1035.93 | 3331.92 | 4145.62 |
|
| 地下室 |
| 3.9/5.5 |
| 1 | 0 | 17860.97 | 0 | 0 | 17860.97 |
| 合计 | -- | -- | -- | -- | -- | 76239.63 | 25816.17 | 5734.41 | 76239.63 | 102055.8 |
| 其他 | 无 |
公示日期:2025年11月20日至2025年11月28日 (共7个工作日) 联系电话:8260106 
|