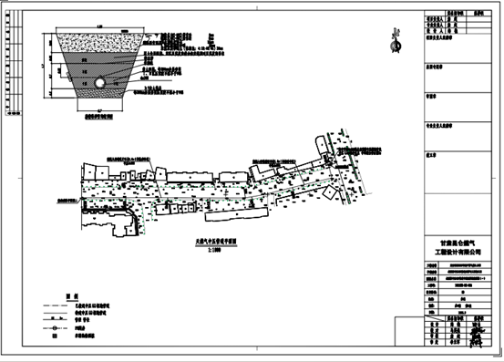
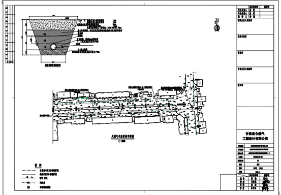
审批事项名称:建筑工程总平面图 项目名称:定西市区2025年用户燃气接入工程 建设单位名称:定西昆仑燃气有限公司 项目位置:定西市安定区 管线起讫点: 1.北城路:起点:中华路与北城路交叉路口,终点:北城路与友谊北路交叉路口 2.友谊北路:起点:北城路与友谊北路交叉路口,终点友谊北路与解放路交叉路口 3.公园路:起点:公园路与友谊北路交叉路口,终点西河桥 4.贵清街:起点:临洮路与贵清街交叉路口,终点贵清街与安定区交叉路口 管线长度:1.北城路:600米 2.友谊北路:653米 3.公园路:502米 4.贵清街:690米 公示日期:2025年3月9日至2025年3月17日 (共7个工作日) 为保障利害关系人的合法权益,现将项目建筑工程总平面图进行公示,并征求利害关系人意见。凡与本地块具有重大利害关系的,可在公示期内向我局提出书面异议。利害关系人要求听证的,应当在公告发布之日起5日内以书面形式提出听证申请,并提供身份证明、房产证明等证明规划内容直接涉及其重大利害关系的材料。规定期限内未提交前述材料的,视为放弃。公示期满无异议,异议不成立或未要求听证的,视为无意见。 联系电话:0932-8312726 建筑工程总平面图 







|